828 Ballaster RoadFuquay Varina, NC 27526




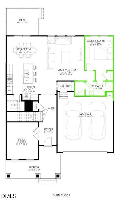
To Be Built - Welcome home to 828 Ballaster Rd, a stunning 5-bedroom, 3-bath retreat designed for comfort, convenience, and modern living. This spacious two-story home features a private first-floor guest suite, ideal for visitors, multi-generational living, or anyone who appreciates a quiet, accessible space of their own. The open-concept main floor seamlessly connects the family room, gourmet kitchen with a large island, and the bright breakfast area, creating a warm and inviting setting for everyday moments and effortless entertaining. Just beyond, a back deck overlooks the community garden, offering a peaceful backdrop for outdoor dining, relaxation, and gatherings. Upstairs, the luxurious primary suite includes dual vanities, a walk-in shower, and an expansive walk-in closet. A generous loft, convenient laundry room, and three additional bedrooms complete the thoughtfully designed second floor. Optional enhancements—such as a cozy fireplace and elegant coffered ceilings—allow you to tailor the space to your personal style. With its flexible layout, upscale details, and room for everyone, 828 Ballaster Rd is the perfect place to grow, unwind, and create lasting memories.
| a week ago | Listing updated with changes from the MLS® | |
| 2 weeks ago | Listing first seen on site |
Listings that are marked with an icon are provided courtesy of the Triangle MLS, Inc. of North Carolina, Internet Data Exchange Database. Copyright 2025 Triangle MLS, Inc. of North Carolina. All rights reserved.
Last checked: 2025-12-01 04:51 AM UTC
Did you know? You can invite friends and family to your search. They can join your search, rate and discuss listings with you.